全国服务热线:13937170928

耐火材料生产厂家
专注研发制造15年
首页 > 耐材百科 > 行业资讯
奥斯麦特法熔炼技术被广泛应用于各种金属提取过程中,可以熔炼铜精矿产出铜锍、直接熔炼硫化精铅矿生产粗铅、熔炼锡精矿生产锡,也可以处理冶炼厂的各种渣料及再生料等。奥斯麦特法是在熔池内的熔体—炉料—气体之间造成强烈的搅拌与混合,大大强化热量传递、质量传递和化学反应速率,以便在燃料需求和生产能力方面产生较高的经济效益。奥斯麦特法的喷枪竖直浸没在熔渣层内,喷枪结构较为特殊,炉子尺寸比较紧凑,整体设备简单。
奥斯麦特技术是在原有赛罗熔炼法和艾萨熔炼法的基础上,进行了大量的应用性技术开发,特别是增加了喷枪外层套筒,使炉内所需二次燃烧风可以直接从同一支喷枪喷入炉内,使熔池上方的金属蒸气和未完全燃烧的碳质颗粒得以充分燃烧,并由激烈搅动的熔体将其吸收,较大幅度地提高炉内反应的热效率,同时也改善了烟气性质。
奥斯麦特炉结构是由炉壳、炉衬、炉底、炉墙、炉顶、喷枪、喷枪夹持架及升降装置、加料装置、上升烟道以及产品放出口等组成。上升烟道设计一是保证烟气通畅,二是尽量防止黏结堵塞,而且确保发生黏结后容易清理。烟道的结构形式有倾斜式和垂直式。烟道内衬耐火材料,目的是使进入烟道的熔渣可自流回到炉内。倾斜式烟道黏结严重,而且不易清理。垂直式烟道是余热锅炉受热面的一部分,这种形式的烟道内壁温度低、烟尘易黏结,但黏结层易脱落,好清理。
奥斯麦特炉熔炼速度快,生产率高,建设投资少,生产费用低,原料适应性强,与已有设备配套灵活、方便,操作简便,自动化程度高,燃料适应范围广,有良好的劳动卫生条件。但是炉寿命较短,喷枪保温要用柴油或天然气,价格较贵。
1、奥斯麦特炼铅熔炼工艺流程
1)车间布置

车间布置如图1所示。
图片图1注:炼铅熔炼车间布置
2) 炼铅熔炼工艺流程
炼铅熔炼工艺流程如图2所示。由图2可知,在阶段(熔炼),铅精矿、铅残渣以及硫酸铅残渣混合二氧化硅以及石灰石一起添加到炉内。燃料煤、喷枪空气、喷枪氧气以及保护气通过喷枪进行供给。所有阶段的烟尘会在熔炼阶段加入。

图片图2注:炼铅熔炼工艺流程
铅金属以及含铅40wt.%的残渣会在这一阶段产生,当金属被阶段性排除后,残渣留作下一阶段反应。当炉内残渣容量达到上限时,给料会暂停。熔池会降低,起初通过添加铅精矿与块煤(还原1),随后只是添加块煤(还原2)。在此两个还原阶段,残渣中的氧化铅含量减少形成铅金属,残渣中的铅含量在过程结束后会从40wt.%降至5wt.%。氧化还原段所加物料时段如图3所示。

图片图3注:氧化还原段所加物料时段
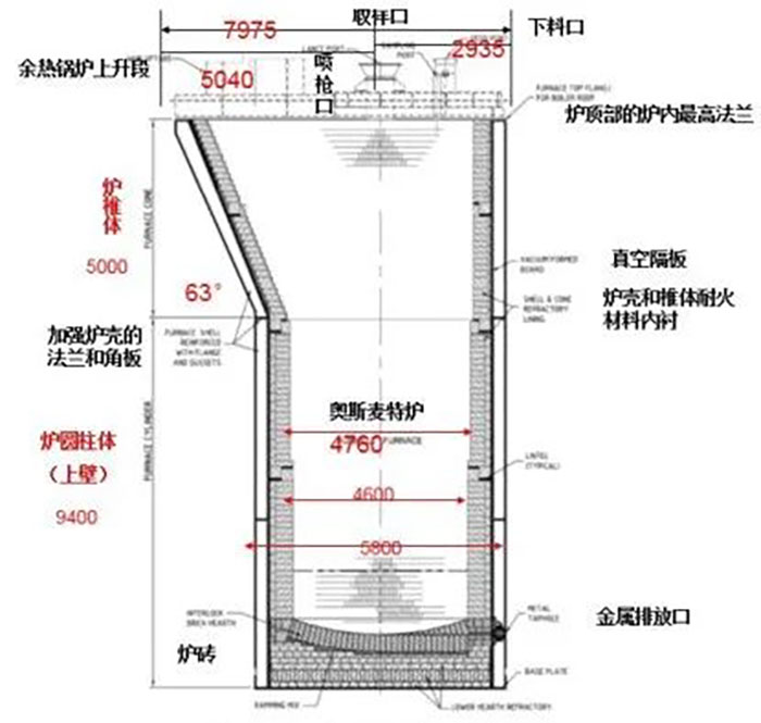
2、奥斯麦特炉结构概况
奥斯麦特炉结构如图4所示,分为三部分:底壁(包括炉床和排放口)、上壁和锥体。炉壳由钢板轧成并根据设计尺寸焊接。顶部包括喷枪口、进料口、备用烧嘴口、取样口和余热锅炉口,如图5所示。

图片图4注:奥斯麦特炉结构示意图

图片图5注:奥斯麦特炉炉顶示意图
所有的受热面都衬有耐火砖。炉床底部主要由粘土质耐火砖和捣打混合物组成。除了出渣口周围区域,炉壳和椎体的整个外部表面为由垂直套管焊接在表面的水冷式。炉壳下部有一个出渣口和一个排铅口,由双层套管(非垂直套管)围绕。炉体由格床结构支撑。
1) 排放口
奥炉熔炼过程产品可通过排放口排出。排放口可通过吹氧管或风镐打开,要关闭排渣口可使用“泥塞”人工关闭或通过泥炮枪喷入粘土关闭排放口,包括金属排放口,熔渣排放口。
奥炉使用的排放口含两层(外部或内部)水冷铜挡板。排放口用于排出熔炉内的熔化物。排放口挡板冷却系统在熔炉排放时对排放口挡板进行冷却,如图6所示。
降低排放口插入物被腐蚀的程度,保护水冷降低内部排放口挡板后的防火材料的磨损,并能在停止排放后冷却熔化物,从而帮助排放口关闭。

图片图6注:奥斯麦特炉排放口示意图
由于排放口挡板插入物承受的热循环非常快同时被腐蚀严重,所以它是奥斯麦特炉磨损快的部件之一。对排放口挡板插入物进行水冷能降低其磨损率,因此能降低更换它们的频率。奥炉使用的插入物由加工过的石墨制成,并置于一个带弹簧的楔形系统中。在熔炉关闭前或在“紧急排放”时,使用金属排放口作为完全排放口将熔炉内的熔化物全部排出。
2)电热前床
电热前床是用于容纳奥炉产出的含铅5%左右的终渣,终渣经过渣溜槽流入20×3.162m?的电热前床,电热前床使铅进一步沉淀后送入烟化炉进行锌渣的烟化作业,设计渣高1.3m,沉淀出的铅经铅排放口排入铅包,经铅包吊运注入铅锅,渣排放口定期将渣放入烟化炉,烟化炉检修时前床渣可通过水淬堆存,然后返回烟化炉。电热前床通过三根石墨电对熔渣进行保温,电源引自鼓风机房10kV配电室,正常工作时基温度的控制是通过控制伸入前床的电和前床变压器进行控制,三只电通过位于9米高的三只卷扬机进行控制。
3)风冷底板
奥炉底部由支撑在格床上的钢质底板组成。在熔炉设计和安装时,为熔炉钢质外壳受热膨胀留有富裕量。底部通过炉床上安装的一层耐火材料进行隔热。风冷防止底板因持续受热而发生变形。风冷由自然对流产生。敞开的格床便于底部空气流通。因此需要特别注意的是底部不可覆盖,密封或封闭,如图7所示。

图片图7注:风冷底板示意图
4)水冷外壳
熔炉内部使用耐火衬里,同时外部外壳也需要进行冷却, 以防止持续受热而发生变形。这一低强度的冷却方法并不会对由耐火衬里传出的热量有太大影响,而只能冷却凝固外壳“热面”的一薄层炉渣并在耐火材料失效的情况下保护外部钢质外壳,从而为停炉赢得时间。水冷外壳设计采用了并行水冷环路设计,因此在其中一个环路失效后水冷系统还能继续运行,从而能在可控条件下停炉。
5)Ausmelt 喷枪
奥斯麦特喷枪结构如图8所示,内部由四只不锈钢同心套管组成。喷枪内部的燃料(粉煤)、混氧风,喷枪风,套筒风都会连接到属于各自 的管道中,喷枪大体上可以分为两个功能区:喷枪安装板以上部分和喷枪安装板以下部分。安装板以上部分提供了工艺管道的连接,该部分对喷枪的提升和固定起着重要的作用。支撑板下部是插入到熔炉的同心管。喷枪全长20.86m,炉内长度低于12.6m。其中混氧风管短,喷枪风管长,套筒风管止于旋流器上方,粉煤管延伸至旋流器下方。

图片图8注:喷枪示意图
6)保温烧嘴
保温烧嘴的作用有:一是新炉衬的烘烤和预热;二是冷、热炉的再热;三是拆除喷枪后的保温。炉子压力总是维持在-250~50Pa(表压),火焰形状保持长而窄是非常重要的,因为如果火焰直接冲击炉壁,则会导致炉衬的严重剥蚀。在到达炉膛前,长焰还可以得到充分的燃烧,减小浪费。烧嘴将使用轻柴油作为其主要燃料来源,使用空气作为助燃物。在炉子升温过程中,烧嘴须以较大的助燃空气流量和燃料流量以使炉子升温,强度从小火流量升至升温末期的大流量,备用烧嘴的“标称额定参数”确定应可将炉温保持在1200℃,供应的热量应足以补充炉子的总热量损失。其中炉子的总热量损失不包括废气排放带走的热量。
7)喷枪位置

图片图9注:喷枪位置示意图
喷枪位置示意图如图 9 所示。
位置1为停靠位。喷枪完全从炉子里缩回,喷枪内所有物料流停止,进行枪头内部检查。
位置2为进入位。喷枪头部位于喷枪口中。喷枪从位置2下降过程中,开启外部空气(喷枪风)以保证喷枪适当的冷却。
位置3为清洗位,主要功能是移除相应喷枪管道中所有剩余燃料和氧气。
位置4为点火位。通入喷枪燃料,接着喷枪着火。在位置4,喷头处在一个使用保温烧嘴状态。
位置5为保持位。喷枪使炉子维持在保持条件下的操作温度。保温烧嘴工作时,不允许把喷枪降至位置5以下。
位置6为喷溅位,是奥炉喷溅喷涂的高位置,主要是为了使喷枪挂渣,以达到对其隔热的目的,这样会增加喷枪的使用寿命。
位置7为操作位,指喷枪的“操作位”,其包括位置6以下喷头所处的所有位置,但一般不使喷枪到达距炉底150㎜处。
3、炼铅奥斯麦特炉使用过程中存在的问题
1)喷枪使用寿命短且材料价格非常昂贵
奥斯麦特炉炼铅是一种高温强化冶炼过程,铅具有腐蚀性,同时采用喷煤技术,加速缩短喷枪寿命。为解决该问题,喷枪使用的材料价格非常昂贵。
2)烟气温度较高
这使得烟气逸出炉内时会携带大量烟尘,给尾气净化增加了负荷。
3)冶炼温度高
炉子耐火材料消耗快,成本较高。
4、炼铅奥斯麦特炉的发展趋势
1)加强喷枪冷却制度,通过喷枪冷却,加速挂渣,从而利用渣层保护喷枪本体。
2)化炉内结构,主要通过增设挡墙等措施来改变烟气流动轨迹,进而充分利用惯性除尘,放大重力除尘的作用,以减少烟尘量。
3)引进溅渣护炉环节,充分利用渣层来保护炉衬。
24小时咨询热线:0371-56777921