全国服务热线:13937170928
耐火材料生产厂家
专注研发制造15年
首页 > 耐材百科 > 行业资讯
CFB 锅炉相比较常规锅炉而言,具有脱硫操作价格低、燃烧效率高、燃料应用范围广、污染物排放量少、负荷调节大、灰渣综合应用效率高等应用势,符合低碳环保生产理念和洁净燃烧技术应用形势,因此在全国工业生产作业中得到了广泛应用,目前我国能够生产的大规模的 CFB 锅炉可达2000t/h以上(配660WM机组)。

1、 CFB锅炉浇注料施工技术
1)控制配水质量
在进行CFB锅炉浇注料施工前,需要对施工用水进行质量检查,确保用水质量能够满足 CFB 锅炉浇注料施工标准。此外,还需要做好配水工作,具体需要专门的施工人员应用定量容器完成配水操作,以此来控制水的应用量, 如果加水较多,会延长凝固时间,导致浇注料机械强度下降;如果加水较少,会增加浇注料振捣难度,缺少流动性,导致浇注料质地不均匀和蜂窝麻面现象。具体加水量应视CFB 锅炉浇注料施工现场温度和距离控制方式而定。
2)做好模板制作检查工作
在模板制作之前需要做好检查工作,具体需要检查模板的支承件、销钉、钩钉等构造是否符合施工图纸的标准,同时检查模板脱模剂是否符合施工标准,要增加模板拐角部位的销钉数量,炉膛内部管口需要通过不锈钢筋将销钉连接,以此来提高拐角部位的浇注料强度。
3)控制模板制作质量
模板质量直接关系到了 CFB 锅炉浇注料质量,为此,需要做好模板制作质量控制工作,重点需要控制模板的牢固程度,同时需要确保模板尺寸的准确程度。模板牢固程度较高,才能防止跑模,如果在施工过程中出现了跑模现象,需要立即停止施工并将模板拆除干净,同时重新制作模板,这是因为跑模会导致浇注料不均匀。模板需要按照施工要求放样和拼装,同时确保接口的紧密程度,模板表面需要涂刷脱模剂。
4)控制搅拌振捣质量
想要控制搅拌振捣质量,需要注意每次浇注料搅拌量不能过多,以6~10袋为宜(25kg/袋),同时需要在搅拌机中均匀混合之后再加水,这样才能确保浇注料的均匀程度,如果需要在搅拌过程中另加入钢纤维,则需要注意不能成团加入,应均匀撒开。经过搅拌之后的浇注料储存时间不能超过40分钟,好是立即将浇注料导入模板中,并及时振捣,振捣操作以浇注料出现气泡为标准,拔除振捣棒时需要注意动作的缓慢,以倾斜45°为宜,以免留下孔洞,同时还需要确保振捣密实程度,不能出现未经过振捣的死角。对于模板中无法振捣的角落,可以应用榔头沿着模板竖立方向轻微震动模板。浇筑工作需要尽量一次性完成,同时不能重复应用浇注料,如果出现浇筑不平整面,不能通过二次施工的方式来抹平浇筑面。
5)预留膨胀缝
浇注料与钢材的膨胀系数不同,为此,在施工过程中需要做好膨胀缝预留工作, 以此来避免浇注料出现裂缝。目前,预留膨胀缝方式主要有以下几种:将沥青漆涂刷在销钉、金属表面,将涂刷厚度控制在1mm之上;应用分块间隔方式完成浇注料浇筑工作,并用 3mm 厚度的胶合板作为作为膨胀缝;用2mm厚度的陶瓷纤维纸缠绕在金属穿墙件、风帽、仪表管件表面,作为膨胀缝;在塑料施工时切出厚度为施工材料一半的膨胀缝,好采用“Z字形”密封结构。
6)预留测点孔
CFB 锅炉的炉膛、循环回路、排渣设备中分布了大量的压力测点和温度测点,这些测点负责对安装数据进行检查,同时还能反应CFB锅炉的运行情况,操作人员可以结合压力测点和温度测点监测情况来调节锅炉燃烧状况。由此可见,需要做好预留测点孔工作,禁止测点孔出现标高和角度上的偏差,尤其是锅炉下层的压力测点,同时还需要避免测点因角度偏差而导致的元件安装难度增加问题。

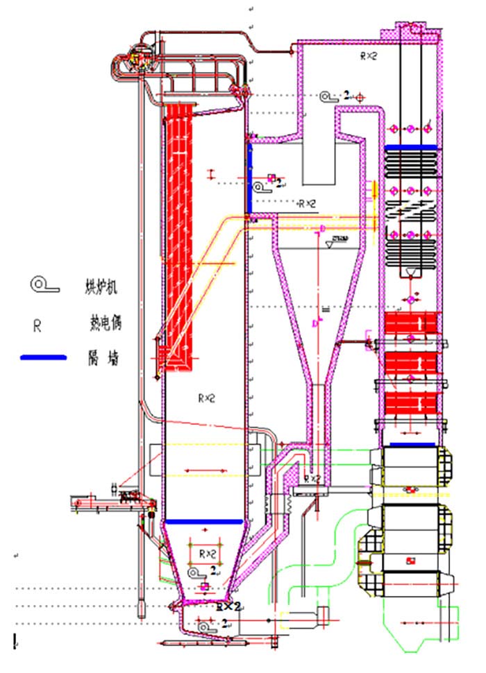
烘炉机布置示意图

烘炉曲线
2 、CFB锅炉烘炉工艺
1) 热烟气烘炉技术方案
目前采用烘炉的燃料种类较多,有燃油、天然气、高炉煤气、甲醇等。烘炉机燃料则通过锅炉管线系统接出,同时为每台烘炉机设置一台风机,这样便可以将热烟气均匀送入到锅炉内的每个部件。左右两侧点火风道各布置1台烘炉机,热烟气则能够通过点火风道进入到炉膛中。床下启动燃烧器中布置2台烘炉机,热烟气则能够通过床下风帽孔传给燃料。炉膛左右各布置1台烘炉机,热烟气直接进入到炉膛中。返料阀左右两侧各布置1台烘炉机,热烟气则能够通过回料阀入孔门进入到分离器中。分离器入口烟道中布置 2台烘炉机,热烟气则能够通过孔门进入到混合室内。总体来讲,热烟气在锅炉内的流通方式主要分为两大类型,一种是通过床下燃烧器、点火风道进入到炉膛至分离器出口烟道中,一种是通过返料阀、分离器进入到出口烟道中。
2)热烟气烘炉技术应用势
(1)由于烘炉机应用了多点布置方式,这可以对烘炉机的应用时间进行化,进而实现对能量的化分配,便可以提高热烟气热量的有效利用率。同时,锅炉外布置8~12台烘炉机,这可以满足不同位置处锅炉的不同需求,避免了热量资源浪费。
(2)便于对锅炉部温度进行控制。热烟气烘炉技术旨在通过控制炉外烘炉机出口温度的方式来控制锅炉内的温度,同时调节烘炉机的压力和风量等相关参数,这样便可以确保锅炉部温度曲线按照设计标准进行。同时还能够有效的避免温度突然升高或降低的情况,这样锅炉材料的稳定性能够进一步得到确保,锅炉的应用性能和应用期限也能得到有效确保。
3)热烟气烘炉技术应用注意事项
(1)防止温度偏差过大;
(2)需要确保烘炉机电源的可靠性,在烘炉时不能中止电源;
(3)烘炉时不能出现缺水或满水问题;
(4)在烘炉初期控制好风量,避免锅炉升温过快;
(5)烘炉前须做好排湿孔开设工作,确保浇注料中的水分能够及时排出;

3、 结语
循环流化床锅炉与常规锅炉为显著的区别为:锅炉应用的浇注料是耐磨耐火材料,浇注料的稳定性也是循环流化床锅炉能够长期稳定运行的重要保障。为此,想要确保循环流化床锅炉的应用性能,需要做好耐磨耐火材料的选择、施工、烘炉等操作。
24小时咨询热线:0371-56777921