全国服务热线:13937170928
耐火材料生产厂家
专注研发制造15年
首页 > 耐材百科 > 技术专栏
危险废物(以下简称危废)种类繁多、成分复杂、区域差异化严重,处理不当会带来一系列民生和社会问题。实践证明,高温焚烧是危废处置和减容化的有效途径,其中回转窑焚烧工艺是危废处理中有效的处置工艺之一,具有处理危废种类多、处理量大等点。我国自20世纪90年代,逐步开始使用回转窑焚烧系统处理危废。近年来,因耐火材料损毁导致的停窑事故多有发生,严重影响了危废焚烧生产线的稳定运转率,对回转窑危废焚烧炉耐火内衬设计化以及运行等提出了迫切需求。
1、我国危险废物无害化处置现状
我国的危废处置从1990年开始起步,到1996年初步形成相关管理, 直至2008年才形成《危废名录》, 2013年,两高司法解释,“非法排放、 倾倒、处理3吨以上危废将入刑”,被视为我国危废处理行业启动的关键点。2016年上半年,《土壤污染防治行动计划》、《危险废物名录(2016年版)》等危废处理相关专项规划的相继颁布实施,2017年,《“十三五”全国危险废物规范化管理督查考核工作方案》颁布, 2018年,生态环境部开展“清废行动2018”计划、工信部开展长江经济带工业绿色发展行动,2019年11月12日,生态环境部办公厅发布《危险废物焚烧污染控制标准(二次征求意见稿)》, 2020年3月10日,标准《固体废物玻璃化处理产物技术要求(征求意见稿)》公开征求意见等,均让危废处理行业发展提速,进一步催化危废处理行业发展机遇。
随着工业的发展,生产过程排放的危废日益增多。2016年, 214个大、 中城市工业危废产生量达3344.6万吨,其中,工业危废综合利用量占利用处置总量的45.3%,处置、贮存分别占比43.8%和10.9%,有效地利用和处置是处理工业危废的主要途径。2018年, 200个大、中城市工业危废产生量达4643.0万吨,预计2020年因为疫情原因,危废将增至近1亿吨。
2、 我国危废焚烧技术
实践证明,回转窑或水泥窑焚烧处理技术可以处理固体、液体和气体状态的工业危废,是当今处理危废为广泛的处置技术。
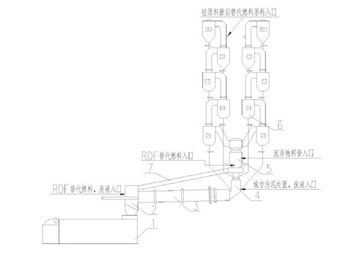
截至2019年7月,我国已取得危废经营许可证的水泥窑协同处置项目75个(不包含港澳台地区),核准规模462.52万吨。目前水泥窑协同处理危废主要包括固体危废、废液以及RDF替代燃料等,主要从预热器、分解炉、后窑口以及窑头罩等
部位处理,典型入料方式如下图所示。

图注:水泥窑协同处理危废系统
(1-篦冷机;2-窑头罩;3-回转窑;4-烟室;5-分解炉;6-预热器)
与传统填埋、焚烧的处理方式相比,水泥窑协同处置废弃物有着明显的势,但由于起步晚,技术、运营、监管等多方面的构建尚不健全。由于水泥工艺和产品质量管控日趋严格,很多危废禁止在水泥窑中协同处置,而且协同危废处理后对运营工况、烟气成分、物料组份都造成很大变化和波动,加剧了水泥窑筒体腐蚀和系统内结圈或者结皮,缩短了耐火材料使用寿命,严重影响了水泥窑长周期稳定运行。
回转窑焚烧炉是危废焚烧装置,如下图所示,主体设备由回转窑、二燃室、余热锅炉、急冷塔、脱酸、除尘系统构成。经过预处理的各类危废通过不同喂养方式进入燃烧系统,在自身重力和回转窑的连续旋转作用下,物料和助燃空气充分接触,完成干燥、气化和燃烧过程,后残留部分淬冷成灰渣。

图注:回转窑焚烧炉系统
(1-料坑;2-进料系统;3-回转窑;4-二燃室;5-锅炉;6-急冷塔;7-脱酸塔;8-除尘;9-烟囱)
根据炉气和固体流动方向的不同,或回转窑中燃烧器的位置,回转窑焚烧炉可以分为逆流和顺流两种形式。其中,燃烧器热源在回转窑的进料端,固体和烟气走向相同,成为顺流式;反之,燃烧器热源在出料端,固体和烟气走向相反, 称为逆流式。目前危废焚烧系统主要是以顺流式回转窑的设计为主,逆流式回转窑更适用于含水率高或热值低的危废等。回转窑焚烧炉具有适用性广特点,可同时处理固体、液体和气体的危废。环保要求日趋严格形势下,回转窑危废焚烧炉势明显。据统计,我国回转窑危废焚烧系统约有800条处理生产线,处理能力从20t/d到120t/d不等。2018年我国危废焚烧处置产能规模达到616万t/年,其中回转窑焚烧占比53%,主要分布在浙江、江苏、山东、河北、福建等地。
3 、回转窑危废焚烧炉耐火内衬设计
1) 回转窑本体
回转窑焚烧炉关键设备即为回转窑本体,因其是一种动态运转设备,对内衬结构设计要求较高,首先要确保耐火内衬在动态高温状态运行下整体内衬的稳定性,防止耐火砖掉砖、抽签等问题。对于危废回转窑系统而言,由于转速比较慢,一般在1转/分以下,可以根据厂房设计和节能要求选择单层砖、双层砖、复合砖和整体浇注等不同结构,如下图所示。回转窑耐火材料总厚度一般是250~300mm不等,其中工作层耐火砖材质一般根据处理温度和危废种类不同, 可以选择高铝质、刚玉莫来石质以及铬锆刚玉质耐火材料等。

图片图注:回转窑内衬设计
采用厚度230~300mm单层结构时,由于耐火材料导热系数大多在1.7~2.0以上,后期高温区窑外壁温度达到350℃以上,但是整体结构稳定,适合于回转窑在室外的项目。
采用隔热砖和耐火砖双层结构,因为隔热砖导热系数低,能起到降低窑皮温度作用,窑外壁温度可以控制在220℃左右甚至以下,节能效果好,但是对施工要求较高,适合于室内项目。这里要注意隔热砖强度一般要求大于20MPa,隔热砖厚度设计不能低于50mm。
既要达到单层砖的稳定性,又要降低外壁温度,可以设计复合砖,即工作面是刚玉砖、铬刚玉砖,背面是氧化铝空心球、高铝或者粘土质,隔热层厚度约为50~70mm。这种产品生产效率低,而且由于工作层和隔热层材质热膨胀系数和烧结收缩率不同,因此,在连接处容易产生微裂纹,废品率较高。
鉴于此,可以采用凹槽型复合砖设计,如下图所示,工作层材质不变,尾部开槽后填充纳米板等绝热材料。这种凹槽砖型复合砖,不仅生产和施工方便,而且可以取得降低筒体外壁温度30~50℃左右效果。

图注:凹槽砖型设计示意图
另外,部分回转窑采用轻质浇注料或者纤维板等作为隔材料,工作层采用重质浇注料(金属抓钉锚固)双层浇注结构,可以合理控制回转窑外壁温度。该结构采用金属件把耐火材料和筒体连为一体,不存在耐火砖脱落问题,但是金属件焊接质量和浇注料中水份烘干排出是关键。

表注:几种回转窑设计方案缺点
以上几种设计方案缺点如表1所示。相比较而言,耐火砖方案检修和更换方便,受环境和人为因素影响较小。现在新建项目回转窑基本都是室外设计,随着提产和环保要求,采用单层结构稳定性较好,高温区可以考虑凹槽复合砖方式, 降低外壁温度。而且从防腐蚀角度,筒体外壁温度控制在160~320℃区间,比较合理。
2 )二燃室
二燃室主要功能是对烟气进行二次燃烧处理,可燃成份、飞灰颗粒以及二噁英等焚烧分解,物理和化学反应同时存在,反应剧烈。二燃室一般包括耐火材料、 保温材料和绝热材料。其中,耐火材料是指工作层重质浇注料、可塑料或者耐火砖等,保温材料是指保温浇注料和保温砖等,绝热材料是指硅酸钙板、陶瓷纤维板以及纳米板等。目前二燃室内衬设计主要包括三种方式,如图所示:

图注:二燃室典型耐火内衬设计
(1)方案一:包括耐火材料、保温材料和绝热材料;这种三层结构设计,以总厚度450mm为例,外壁温度为80~90℃。
(2)方案二:包括耐火材料和保温材料。该结构外壁温度较高,以305mm总厚为例,温度达到150~180℃。
(3)方案三:包括耐火材料和绝热材料。这种方案介于前两种方案之间,以270mm总厚为例,外壁温度约为110~140℃。
一般而言,二燃室温度约为1100~1200℃, 燃烧器局部温度甚至达到1300℃以上,所以工作层选择刚玉莫来石质即可满足使用要求,燃烧器区域工作层建议使用刚玉质或者铬刚玉质材料。相比较而言,方案一的三层结构设计稳定性好, 不容易因漏气或者串火,导致筒体高温腐蚀或者超温变形而停炉检修。
3)其他部位
余热锅炉部分主要是灰斗、集箱、顶部密封以及出口烟道需要使用部分耐磨浇注料,其中灰斗采用绝热材料和耐磨浇注料双层结果较多,总厚度一般在200~250mm。
急冷塔使用耐酸浇注料或者耐酸胶泥,顶部往下约2米区域温度较高可以采用25mm绝热材料作为隔热层,内衬总厚度100mm即可。
4 、典型回转窑危废工艺与耐火材料设计化建议
根据现场调研发现,耐火材料损毁主要集中于回转窑本体区域。危废焚烧主要包括以下几种典型处理工艺,针对此,提出以下设计化建议。
1)处理含水率高物料
进窑物料含水率高,进料端耐火材料热剥落严重,热震稳定性好的莫来石质、 刚玉莫来石质、刚玉碳化硅质等耐火材料适用于此区域。
2)窑头废液处理量大、雾化不好
一般窑头通过雾化枪处理废液,焚烧区域主要在干燥段,受设备影响如果雾化效果不好时,该区域耐火材料也会出现剥落损毁,莫来石质、刚玉莫来石质、刚玉碳化硅质材料同样适用于此。运行时,一般要增加检查雾化设备频次,同时废液处理量不超过30%为宜。
3)铁皮(桶)等硬料处理量大
铁桶等物料硬度大,回转窑转速慢,物料在窑内反复旋转造成进料区机械磨损严重。选择强度高、耐磨性更好的刚玉碳化硅质耐火材料使用效果良好。
4)含低熔点盐量高的物料
物料含K、Na盐量大于5%以上后,熔点较低,容易形成高温熔渣,对耐火材料渗透、侵蚀严重。出现高温熔渣时,高温区耐火材料选择铬锆刚玉质较为合适,一般Cr2O3含量为3~10%不等。
5)含氟量高的物料
物料中含氟比例较高,达1~4%时,如式(1)所示,由于F和耐火材料中Si很容易反应形成SiF4气化,造成衬里基质结构破坏,快速侵蚀;要严格控制耐火材料中杂质含量尤其是二氧化硅含量,采用Cr2O3含量为9~15%铬刚玉材料, 可以满足回转窑正常运行需要。
SiO2 + 4HF = SiF4↑ + 2H2O (1)
5 、结束语
危废焚烧是新兴领域,其中危废种类复杂繁多,物性、热值差异较大,回转窑和二燃室内衬根据需要,设计形式多样。随着对危废的监管力度加大,大型回转窑焚烧技术将在危废处理中得到更广泛的应用,对回转窑焚烧炉耐火材料选型和设计提出了挑战。与传统高温窑炉相比,耐火材料研究人员应更多关注危废物料特性、工况特点(焚烧温度、烟气成分)等。
24小时咨询热线:0371-56777921